casa gargano | manfredonia foto @fabio.bascetta
Un appartamento contemporaneo progettato come sequenza di spazi fluidi e continui, dove architettura e arredo dialogano attraverso materia, luce e colore.
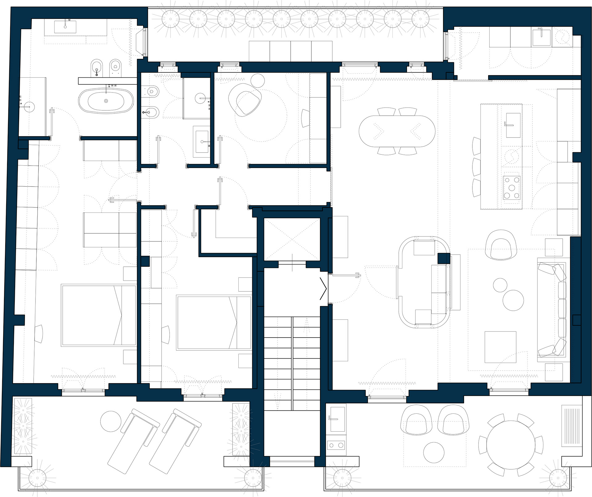
L’intervento di interior design nasce dalla volontà di eliminare la rigidità distributiva originaria, trasformando la zona giorno in un ambiente aperto e permeabile, capace di accompagnare i diversi momenti della quotidianità.
L’intervento di interior design nasce dalla volontà di eliminare la rigidità distributiva originaria, trasformando la zona giorno in un ambiente aperto e permeabile, capace di accompagnare i diversi momenti della quotidianità.
Il fulcro della casa è la cucina con isola in acciaio satinato, pensata come elemento architettonico oltre che funzionale, attorno al quale si organizzano living e zona pranzo. Le superfici materiche, i legni scuri e i toni neutri sono bilanciati da un segno cromatico deciso che diventa riferimento visivo e orientamento spaziale.
Il progetto costruisce così un equilibrio tra minimalismo e atmosfera abitata,
privilegiando continuità percettiva e comfort quotidiano.
privilegiando continuità percettiva e comfort quotidiano.
Il bagno prosegue lo stesso linguaggio progettuale attraverso contrasti calibrati tra pietra e legno,
mentre i dettagli definiscono un’estetica essenziale ma domestica.
mentre i dettagli definiscono un’estetica essenziale ma domestica.