home
metodo
progetti
studio
press
avvia un progetto
home
metodo
progetti
studio
press
avvia un progetto
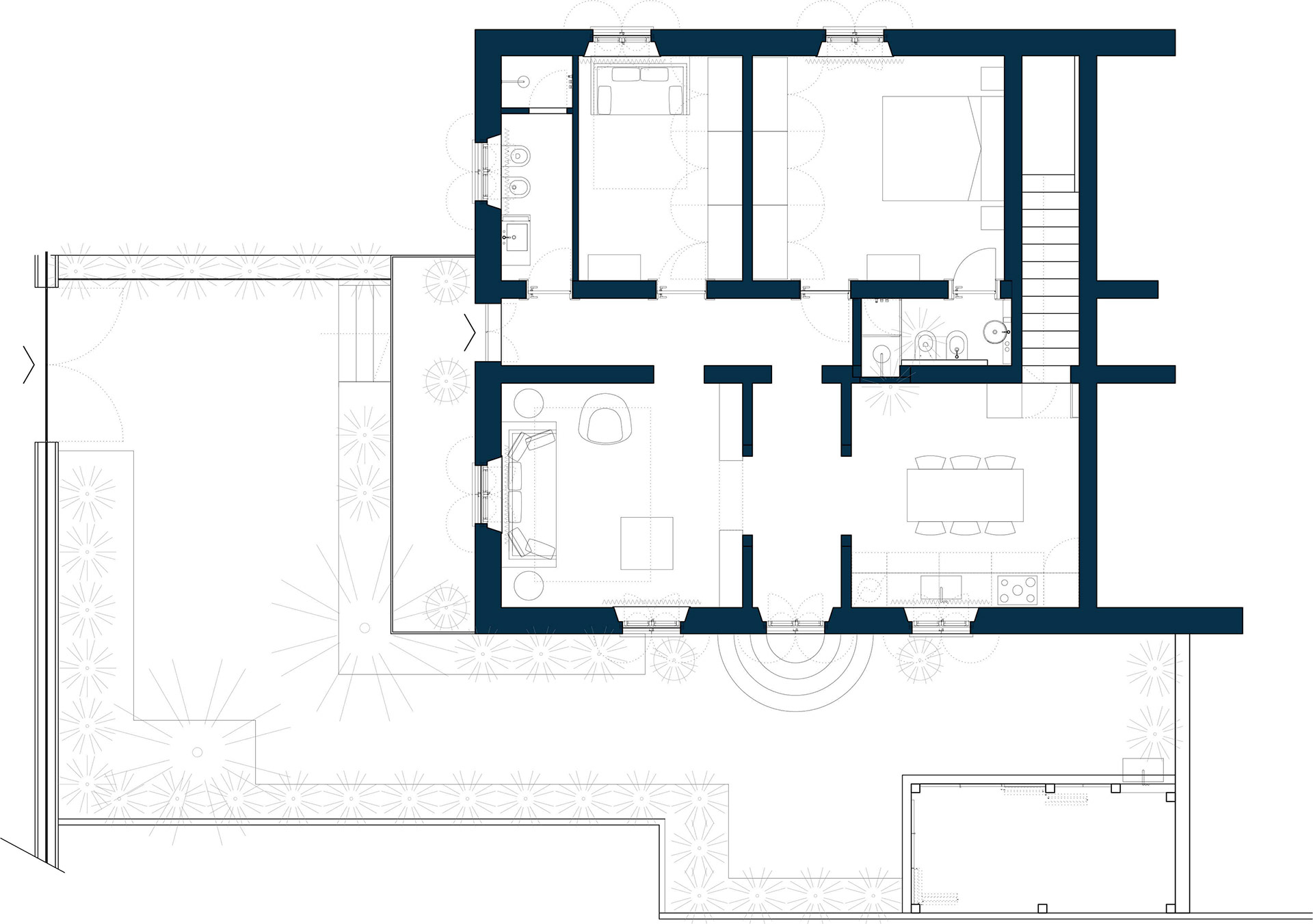
casa sabucchi | pescara
foto
@iacopopasqui