casa sangro | pescara foto @barbarossa_studio
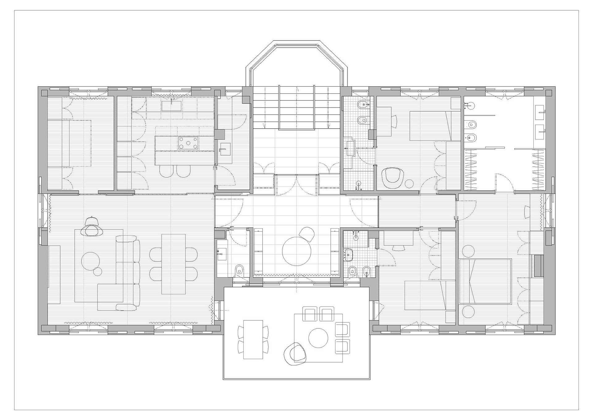
La pianta dell’appartamento è rigorosamente simmetrica, a partire dall’ingresso centrale, dal quale si accede attraverso una scala interna.
L’ingresso, dove è stato recuperato ed integrato il pavimento in pietra esistente, è uno spazio che accoglie il visitatore e si comporta come filtro tra l’appartamento e il resto dell’edificio, accogliendo anche uno studio con delle librerie a giorno alle pareti disegnate su misura.
Molta attenzione è dedicata a dispositivi-filtro per mediare il rapporto tra spazi di diversa pertinenza, attraverso l’uso di porte a bilico interamente vetrate a tutta altezza.
L’ingresso, dove è stato recuperato ed integrato il pavimento in pietra esistente, è uno spazio che accoglie il visitatore e si comporta come filtro tra l’appartamento e il resto dell’edificio, accogliendo anche uno studio con delle librerie a giorno alle pareti disegnate su misura.
Molta attenzione è dedicata a dispositivi-filtro per mediare il rapporto tra spazi di diversa pertinenza, attraverso l’uso di porte a bilico interamente vetrate a tutta altezza.
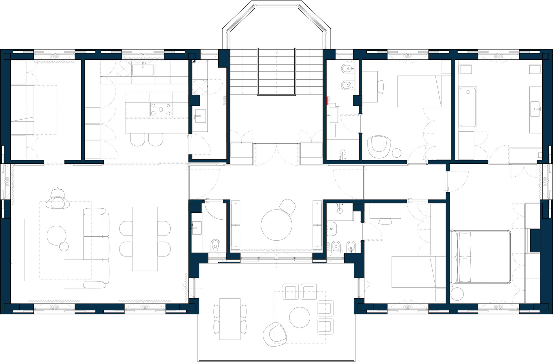
L’essenza in rovere rappresenta l’elemento fondante dell’intero impianto architettonico.
La boiserie multi-tasking in rovere naturale collega longitudinalmente tutto l’appartamento e funge da guardaroba all’entrata, da filtro scorrevole in cucina/soggiorno, da porte a scomparsa per le camere per terminare nella camera da letto padronale, pensata come una suite indipendente, collocata nell’angolo più remoto della casa.
La boiserie multi-tasking in rovere naturale collega longitudinalmente tutto l’appartamento e funge da guardaroba all’entrata, da filtro scorrevole in cucina/soggiorno, da porte a scomparsa per le camere per terminare nella camera da letto padronale, pensata come una suite indipendente, collocata nell’angolo più remoto della casa.
Protagonista della casa è il legno di rovere, lasciato al naturale, utilizzato per i pavimenti, per la boiserie e per tutti gli arredi disegnati e realizzati su misura. Il pavimento in legno della collezione Atelier Désir, caratterizzato dalla texture naturalmente vellutata e dalle sinuose linee allungate, diventa l’ideale palcoscenico su cui si rincorre l’esistenza quotidiana.
Tutti gli elementi architettonici si contraddistinguono per l’estrema essenzialità del legno e della pietra, una palette colori all’insegna della natura e del bianco puro con un tocco “industrial” interpretato dall’acciaio della cucina. A questi si contrappongono – per un effetto dal forte impatto visivo – il nero delle colonne della cucina, gli infissi delle porte vetrate e di tutti gli elementi elettronici. Sono poche e ben calibrate le note di colore che dipingono il tavolo in metallo e il mobile TV.
Il legno, attualizzato da un tocco “urban”, lo si ritrova anche nel soggiorno, con la bella lounge chair di Carl Hansen & Søn, iconico brand danese. La CH07, meglio conosciuta come Shell chair, è qui presentata con una struttura in noce oliato e rivestimento della seduta in pelle nera Thor, che le conferisce quel pizzico di modernità, fil rouge dell’intero progetto.
Poco più il là, nella zona pranzo, attorno al bel tavolo in metallo, 4 icone del design moderno danese, le CH24 Wisbone Chair sempre di Carl Hansen & Søn. Le sedie dal caratteristico schienale a Y, sono in rovere sapone, protagonista dell’intera casa. Confort, unicità ed eleganza per una sala da pranzo con carattere ma dallo stile senza tempo.
Il legno, attualizzato da un tocco “urban”, lo si ritrova anche nel soggiorno, con la bella lounge chair di Carl Hansen & Søn, iconico brand danese. La CH07, meglio conosciuta come Shell chair, è qui presentata con una struttura in noce oliato e rivestimento della seduta in pelle nera Thor, che le conferisce quel pizzico di modernità, fil rouge dell’intero progetto.
Poco più il là, nella zona pranzo, attorno al bel tavolo in metallo, 4 icone del design moderno danese, le CH24 Wisbone Chair sempre di Carl Hansen & Søn. Le sedie dal caratteristico schienale a Y, sono in rovere sapone, protagonista dell’intera casa. Confort, unicità ed eleganza per una sala da pranzo con carattere ma dallo stile senza tempo.