home
metodo
progetti
studio
press
avvia un progetto
home
metodo
progetti
studio
press
avvia un progetto
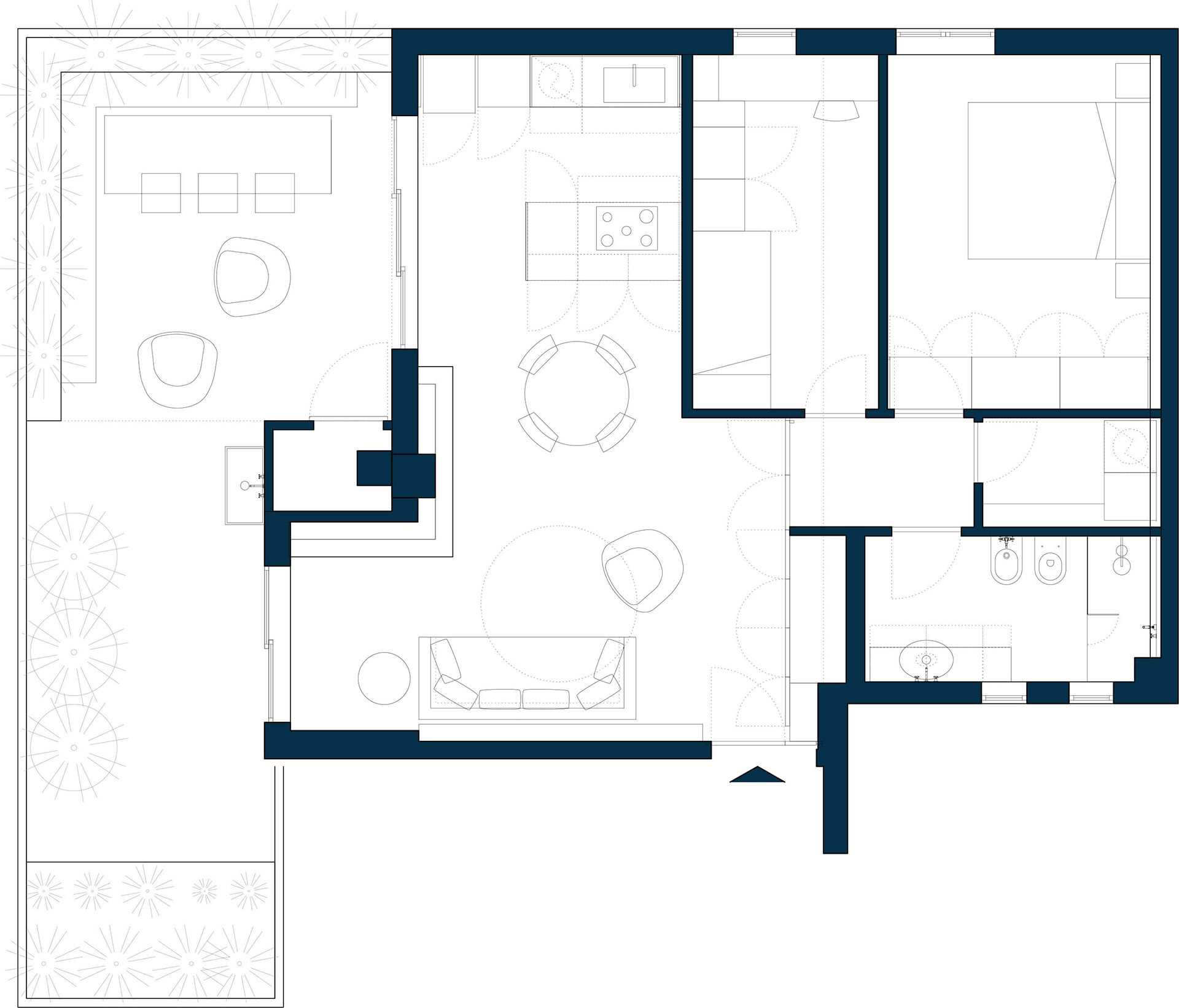
casa val santerno| roma
foto
@
bocciamick